Fall 2017 / Harvard Graduate School of Design
Core III (Stu 1201) with Kiel Moe 
![]()

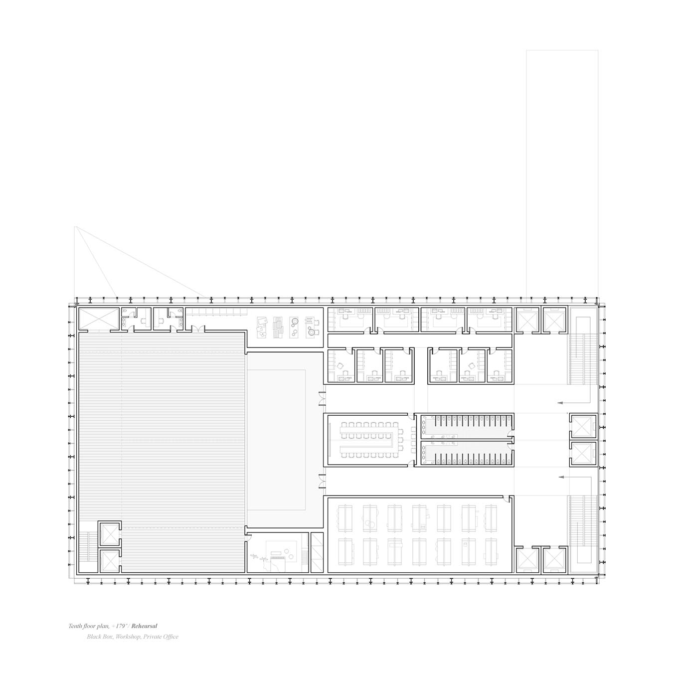
performance in a tower

 A semester-long design project in downtown Boston, charged with a comprehensive opera theater program on a site split in two by the interstate.
![]()


collection of axons: theater precedents


 
           
        
 
         
        


process drawings: sections and plans
![]()





© Karen Duan, 2020